EUTRAC 3-fazowy system szynowy – profesjonalne oświetlenie natynkowe do biur, galerii i mieszkań

Czym jest system szynowy EUTRAC 3-fazowy?
System szynowy EUTRAC 3-fazowy to profesjonalna, modułowa infrastruktura zasilająco-montażowa, która umożliwia podłączenie wielu opraw oświetleniowych do jednej linii zasilania i niezależne sterowanie nimi w trzech obwodach (fazach). Szyna pełni jednocześnie funkcję przewodu zasilającego oraz mechanicznego toru mocowania reflektorów, zwisów czy adapterów technicznych. Dzięki temu projektanci mogą precyzyjnie rozplanować światło w przestrzeni bez konieczności prowadzenia osobnych kabli do każdej lampy.
Trójfazowa konstrukcja oznacza, że wewnątrz profilu znajdują się trzy niezależne tory prądowe (L1, L2, L3) plus przewód neutralny oraz uziemienie. Każda oprawa zamocowana w szynie może zostać przypisana do wybranej fazy, co pozwala grupować oświetlenie – np. światło ekspozycyjne, ogólne i akcentowe – i włączać je oddzielnie przełącznikami, automatyką lub systemem sterowania. To rozwiązanie szczególnie cenione w obiektach komercyjnych, galeriach sztuki, showroomach, biurach typu open space i zaawansowanych instalacjach domowych.
Marka EUTRAC znana jest z precyzyjnie wykonanych profili o stabilnej konstrukcji i wysokiej jakości przewodników. Szyny są projektowane tak, aby utrzymać pewny styk elektryczny z adapterami oraz zapewnić szybki montaż i demontaż opraw – co znacząco ułatwia późniejsze przemeblowania, sezonowe ekspozycje lub zmiany aranżacji światła. Standardowe akcesoria montażowe pozwalają tworzyć zarówno proste odcinki, jak i rozbudowane układy wielokierunkowe.
Wariant 3-fazowy zapewnia znacznie większą funkcjonalność niż systemy jednofazowe: większą liczbę opraw na jednej linii, niezależne sterowanie grupami lamp, redukcję okablowania w suficie oraz łatwiejsze zarządzanie oświetleniem w dużych pomieszczeniach. Przy odpowiednim doborze osprzętu system może współpracować z ściemnianiem, czujnikami, sterowaniem scenami świetlnymi oraz rozwiązaniami inteligentnego budynku.
Szyny EUTRAC dostępne są w różnych długościach, kolorach i formach montażu – w tym w wersji natynkowej, która nie wymaga wpuszczania w sufit. Dzięki rozbudowanej gamie łączników prostych, kątowych, krzyżowych, zasilających i zawiesi możliwe jest tworzenie układów dopasowanych do bryły wnętrza. Ułatwia to zarówno planowanie linii światła w osi pomieszczenia, jak i oświetlanie kilku stref z jednej, logicznie zaprojektowanej magistrali.
Podsumowując funkcjonalność: EUTRAC 3F to nośnik zasilania + elastyczny tor montażu + podział na trzy obwody = maksymalna kontrola nad światłem bez zbędnego chaosu kablowego. To rozwiązanie techniczne, które przekłada się na estetykę, wygodę serwisową i długofalową opłacalność inwestycji w oświetlenie.
Dlaczego warto wybrać wersję natynkową EUTRAC?
Wersja natynkowa systemu EUTRAC 3-fazowego to rozwiązanie stworzone z myślą o maksymalnej uniwersalności montażu. Jej główną zaletą jest brak konieczności ingerencji w strukturę sufitu – szyny montowane są bezpośrednio na powierzchni, co znacząco ułatwia instalację w już wykończonych pomieszczeniach, a także w obiektach z sufitami betonowymi, żelbetowymi lub sufitami technicznymi. Dzięki temu system może być wdrożony zarówno podczas nowych aranżacji, jak i modernizacji istniejącego oświetlenia, bez uciążliwych prac budowlanych.
Natynkowy EUTRAC pozwala na szybki i estetyczny montaż zarówno na sufitach gładkich, jak i podwieszanych. Profil oświetleniowy pełni jednocześnie funkcję konstrukcyjną i dekoracyjną – jego widoczna obecność nadaje wnętrzom nowoczesny, techniczny charakter, szczególnie ceniony w aranżacjach loftowych, minimalistycznych oraz komercyjnych.
Kolejnym atutem wersji natynkowej jest możliwość łatwego rozbudowania systemu – dzięki dostępności łączników, narożników i rozdzielaczy, instalacja może być modyfikowana bez potrzeby demontażu całej konstrukcji. To kluczowe w dynamicznych przestrzeniach takich jak galerie handlowe, ekspozycje, showroomy, sklepy, biura czy studia fotograficzne, gdzie oświetlenie musi się adaptować do zmieniających się funkcji pomieszczenia.
Wersja natynkowa eliminuje także ryzyko błędów związanych z instalacją podtynkową: nie wymaga precyzyjnego frezowania, wycinania otworów ani specjalnych rusztów. Montaż odbywa się bezpośrednio do stropu lub konstrukcji sufitu, co skraca czas prac i redukuje koszty instalacyjne. Dzięki prefabrykowanym akcesoriom z oferty EUTRAC, całość może zostać złożona w sposób niemal modułowy – zgodnie z wcześniej przygotowanym schematem instalacyjnym.
Natynkowe szyny EUTRAC zachowują pełną funkcjonalność 3-fazowego systemu – niezależne tory prądowe, możliwość grupowania reflektorów, kompatybilność z adapterami i możliwość sterowania z poziomu systemów inteligentnych. Jednocześnie są bardziej dostępne serwisowo – w razie potrzeby reflektory i adaptery można szybko przełożyć, wymienić lub dodać nowe bez demontażu całej linii.
Wersja natynkowa to także kompromis między estetyką a dostępnością techniczną. Pozwala zachować elegancki wygląd systemu szynowego przy jednoczesnym ułatwieniu jego obsługi, rozbudowy oraz przekształceń w układzie oświetlenia. To wybór, który docenią zarówno architekci wnętrz, jak i użytkownicy końcowi szukający prostoty, estetyki i funkcjonalności w jednym systemie.
Elastyczność konfiguracji – kształty, łączniki i uziemienie
Jedną z największych zalet systemu EUTRAC 3-fazowego jest jego modułowość i możliwość dowolnej konfiguracji układu szyn. Producent oferuje szeroką gamę łączników prostych, kątowych, krzyżowych oraz rozdzielaczy, które pozwalają tworzyć linie proste, układy w kształcie litery L, U, a nawet zamknięte kwadraty lub prostokąty. To otwiera ogromne możliwości projektowe, umożliwiając pełne dopasowanie układu oświetleniowego do architektury pomieszczenia, mebli lub ekspozycji.
Dzięki precyzyjnie wykonanym złączkom montaż szyn jest szybki, powtarzalny i bezpieczny. Każdy łącznik posiada oznaczenia fazowe, co ułatwia prawidłowe podłączenie i zachowanie ciągłości obwodów. Można łączyć odcinki o różnych długościach, stosować podwójne zasilanie lub zapętlać układ, zwiększając jego niezawodność i możliwości rozbudowy w przyszłości. Całość może być zasilana punktowo lub wielopunktowo – w zależności od potrzeb użytkownika oraz zastosowanego osprzętu.
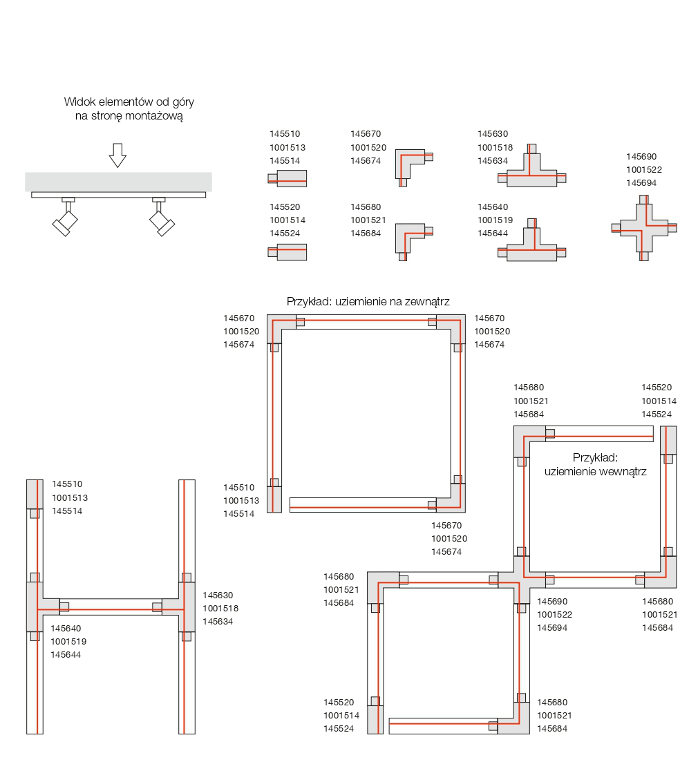
Istotnym aspektem konfiguracji systemu jest uziemienie. W systemach 3-fazowych, szczególnie w zastosowaniach komercyjnych i publicznych, kwestia poprawnego uziemienia każdego elementu systemu ma kluczowe znaczenie dla bezpieczeństwa instalacji. EUTRAC oferuje łączniki w wersji z uziemieniem zewnętrznym lub wewnętrznym, co widać na rysunku technicznym. Pozwala to projektantom dostosować układ do obowiązujących przepisów i preferencji instalacyjnych – np. w zależności od sposobu prowadzenia przewodów w obiekcie lub typu adapterów użytych w systemie.
Na etapie projektowym można dobrać odpowiednie kombinacje elementów z katalogu, by precyzyjnie odwzorować zamierzoną geometrię. Wszystkie komponenty są ze sobą w pełni kompatybilne, a system zachowuje logiczne rozmieszczenie torów prądowych L1–L2–L3 w każdym połączeniu. Dzięki temu zachowana jest ciągłość zasilania i pełna funkcjonalność 3-fazowa nawet w skomplikowanych układach.
Dodatkowo, system natynkowy EUTRAC może być wyposażony w komponenty montażowe umożliwiające zamocowanie do różnych podłoży: beton, drewno, metal czy systemy podwieszane. Projektanci mogą z łatwością rozplanować siatkę świetlną opartą o centymetrową precyzję, bez konieczności ograniczania się do układu prostoliniowego. To elastyczność, która przekłada się bezpośrednio na jakość projektu oświetleniowego i jego późniejszą funkcjonalność w codziennym użytkowaniu.
Typowe zastosowania systemu EUTRAC 3F w przestrzeniach użytkowych
System szynowy EUTRAC 3-fazowy znajduje zastosowanie wszędzie tam, gdzie istotna jest możliwość indywidualnego sterowania grupami opraw, elastyczne planowanie światła oraz wysoka estetyka instalacji. Dzięki swojej funkcjonalności jest często wybierany do realizacji profesjonalnych projektów oświetleniowych w przestrzeniach komercyjnych, usługowych i publicznych.
Jednym z najczęstszych miejsc zastosowania EUTRAC są galerie handlowe i sklepy detaliczne. Możliwość przypisania opraw do różnych faz umożliwia niezależne sterowanie światłem w poszczególnych strefach ekspozycyjnych – witrynach, regałach, ciągach komunikacyjnych czy strefach kasowych. To pozwala zarządzać nastrojem w sklepie i dostosowywać oświetlenie do zmieniającej się ekspozycji, promocji lub pory dnia.
W biurach typu open space EUTRAC 3F wykorzystywany jest do oświetlania poszczególnych stanowisk pracy, stref spotkań, aneksów kuchennych czy przestrzeni socjalnych. Dzięki trójfazowej strukturze można stworzyć zróżnicowane sceny świetlne – np. dynamiczne światło dzienne do pracy i stonowane oświetlenie relaksacyjne do stref wypoczynkowych. To zwiększa komfort pracy i pozwala lepiej dopasować światło do zadań wykonywanych w danym obszarze.
W galeriach sztuki, muzeach oraz showroomach system szynowy EUTRAC pozwala uzyskać precyzyjne, kierunkowe oświetlenie eksponatów lub elementów wystawienniczych. Oprawy na adapterach można łatwo przemieszczać i obracać, co ułatwia tworzenie ekspozycji czasowych i szybką adaptację przestrzeni. Trzy niezależne obwody umożliwiają osobne sterowanie światłem ogólnym, akcentującym i tłem – bez ingerencji w układ elektryczny.
System sprawdza się także w restauracjach, hotelach i przestrzeniach eventowych, gdzie wymagane jest tworzenie scen świetlnych zależnych od funkcji pomieszczenia. EUTRAC umożliwia szybką zmianę aranżacji świetlnej bez demontażu konstrukcji, co jest niezwykle istotne przy obsłudze wielu wydarzeń lub sezonowych aranżacji wnętrz.
Coraz częściej systemy 3-fazowe montowane są również w nowoczesnych wnętrzach mieszkalnych – szczególnie tam, gdzie kuchnia łączy się z salonem, a światło pełni zarówno funkcję praktyczną, jak i dekoracyjną. Umożliwiają one strefowe doświetlenie wyspy kuchennej, jadalni, strefy wypoczynku czy galerii ściennej – wszystko w ramach jednego spójnego systemu z możliwością rozbudowy.
EUTRAC 3F to zatem system nie tylko dla profesjonalistów – jego modułowa budowa, estetyczne wykonanie i funkcjonalność sprawiają, że jest idealnym rozwiązaniem dla każdego, kto oczekuje czegoś więcej niż tylko zwykłego oświetlenia sufitowego.
Dobór reflektorów i osprzętu do szyny 3-fazowej
Dobór odpowiednich reflektorów i osprzętu do szyny 3-fazowej EUTRAC ma kluczowe znaczenie zarówno dla funkcjonalności systemu, jak i efektu końcowego aranżacji świetlnej. System ten oferuje ogromne możliwości konfiguracji, ale wymaga odpowiedniego dopasowania komponentów – od technicznego adaptera, przez źródło światła, aż po parametry optyczne i kąt świecenia oprawy.
Reflektory przeznaczone do szyn 3-fazowych posiadają specjalne adaptery kompatybilne z torami prądowymi EUTRAC. Adapter ten nie tylko mechanicznie mocuje oprawę w szynie, ale również pozwala na przypisanie jej do jednej z trzech dostępnych faz – co oznacza, że można tworzyć niezależne grupy opraw sterowane osobno. W zależności od typu adaptera możliwa jest również obsługa funkcji ściemniania lub integracja z systemami DALI, DMX czy KNX.
Podczas wyboru reflektorów warto zwrócić uwagę na parametry takie jak moc, barwa światła (ciepła, neutralna, zimna), współczynnik oddawania barw (CRI) oraz kąt świecenia. W przestrzeniach komercyjnych często wykorzystuje się oprawy z wąskim kątem do oświetlenia produktów lub detali, natomiast w biurach i przestrzeniach mieszkalnych – szerszy rozsył światła dla uzyskania równomiernego doświetlenia strefy użytkowej.
System EUTRAC umożliwia również zastosowanie reflektorów obrotowych, które można dowolnie kierować i regulować ich pozycję wzdłuż całej długości szyny. To sprawia, że zmiana aranżacji przestrzeni nie wymaga wymiany instalacji elektrycznej – wystarczy przesunąć lub przegrupować oprawy.
Oprócz reflektorów, w systemie EUTRAC dostępne są także inne elementy osprzętu: adaptery do zwisów, zasilacze LED, moduły techniczne, końcówki zasilające, zaślepki i łączniki funkcyjne. Dzięki temu można stworzyć zarówno klasyczne oświetlenie kierunkowe, jak i mieszane układy zawierające reflektory, lampy wiszące i akcenty dekoracyjne.
Dobierając osprzęt, należy również pamiętać o rodzaju montażu – w przypadku wersji natynkowej warto zastosować komponenty dopasowane wizualnie do koloru szyny (czarne, białe, aluminiowe) oraz zadbać o estetyczne wykończenia końcówek i elementów zawieszenia. Dzięki szerokiej gamie akcesoriów i reflektorów, system EUTRAC można dostosować zarówno do wnętrz komercyjnych, jak i domowych, zachowując spójność wizualną i wysoką funkcjonalność.
Ostatecznie, dobór reflektorów i osprzętu to proces, który powinien uwzględniać specyfikę przestrzeni, sposób użytkowania, wymagania świetlne oraz stylistykę wnętrza. EUTRAC jako system 3-fazowy oferuje pełną dowolność w tym zakresie – dając projektantom i użytkownikom narzędzie do tworzenia dopasowanego i skalowalnego systemu oświetlenia.
Estetyka i trwałość komponentów EUTRAC – nowoczesny standard oświetlenia
Systemy szynowe EUTRAC 3-fazowe to nie tylko funkcjonalność, ale również dopracowana estetyka i solidność wykonania. Każdy element – od szyny zasilającej, przez łączniki, aż po adaptery i reflektory – został zaprojektowany z myślą o wysokim standardzie wykończenia oraz harmonii z nowoczesnymi przestrzeniami użytkowymi. Minimalistyczna forma, precyzyjne linie i matowe wykończenia kolorystyczne sprawiają, że cała instalacja staje się spójnym elementem architektury wnętrza.
Szyny EUTRAC produkowane są z wysokogatunkowego aluminium, co zapewnia im sztywność, trwałość i odporność na odkształcenia. Warstwa zewnętrzna lakierowana jest proszkowo, dzięki czemu nie tylko estetycznie się prezentuje, ale również chroni przed korozją, zarysowaniami i promieniowaniem UV. Szyny dostępne są zazwyczaj w kolorze czarnym, białym oraz aluminium naturalnym – co pozwala dopasować je do różnych typów wnętrz, zarówno technicznych, jak i dekoracyjnych.
Równie dużą wagę przywiązano do komponentów montażowych. Łączniki, narożniki i elementy zawieszenia są wykonane z solidnych materiałów technicznych i tworzyw odpornych na starzenie. Ich spasowanie z profilami głównymi zapewnia estetyczne przejścia, bez widocznych szczelin czy luzów. Dzięki temu nawet skomplikowane układy zachowują spójność wizualną i wysoką jakość wykonania.
Trwałość komponentów przekłada się bezpośrednio na opłacalność inwestycji – system raz zamontowany może być użytkowany przez wiele lat, z możliwością modernizacji bez konieczności wymiany całej infrastruktury. Możliwość wielokrotnego montażu i demontażu opraw bez uszkadzania szyny to kolejny atut, który docenią zarówno użytkownicy końcowi, jak i serwisanci czy architekci wnętrz realizujący wieloetapowe inwestycje.
Nowoczesny charakter systemu EUTRAC podkreśla jego kompatybilność z różnorodnymi typami reflektorów, lamp wiszących i elementów technicznych. Całość pozostaje estetyczna, nawet przy dużej liczbie opraw czy rozbudowanej strukturze szyn. Instalacja oświetlenia nie dominuje wizualnie, lecz staje się integralnym elementem kompozycji wnętrza, wspierającym jego funkcję i charakter.
To właśnie połączenie elegancji, funkcjonalności i trwałości sprawia, że EUTRAC uchodzi za jeden z najbardziej profesjonalnych systemów szynowych na rynku. Sprawdza się zarówno w przestrzeniach komercyjnych, gdzie liczy się niezawodność i powtarzalność, jak i w aranżacjach premium, gdzie oczekuje się doskonałości w każdym detalu.
Nasze wpisy


